
140㎡魅力黑白灰,這個家的現代感讓人上頭!

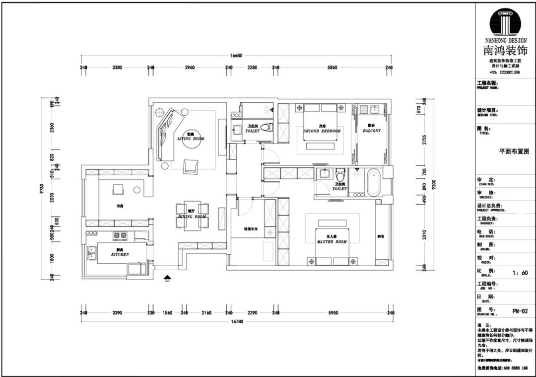
項目信息 / 地址:山水國際 城市:中國 杭州 戶型:四室兩廳 面積:140㎡ 風格:現代簡約 設計施工:浙江南鴻裝飾 本案主以利落的黑白灰構建,空間使用大面積鯊魚灰、魅影黑、純凈白鋪陳出安穩雅致的氛圍氣息,局部用自然的綠意點綴,為現代感的居室注入清新靈動,呈現一種親切又暢快的視覺感受。 設計拋開冗余的裝飾堆砌,注重挖掘環境與人的貫連尺度,以簡約素凈的語言和層次分明的體塊構建空間秩序,讓家的世界回歸純粹與自在。 【戶型設計】 LIVING ROOM 客廳>> 簡約、寧靜的現代風格是永不過時的主題。居室內的色澤與材質拉出分明的層次,背景墻面體塊做疊構的形式,加上墻頂地多種光源的組合,塑造富于立體感和趣味性的明亮現代空間。 有棱有角的米色沙發,搭配弧形的茶幾、單椅,低矮的形體有助于拉伸層高,直曲線的結合也使空間不致過于硬朗。窗戶覆蓋白色夢幻簾,柔和地過濾掉每一寸外部光線。 角落擺放一盆百合竹,為空間注入自然的清新氣息,視覺和精神都得到了舒緩。 DINING ROOM 餐廳>> 餐廳與客廳保持了各自的獨立性,又連貫融合,滿足社交的多樣化需求。空間使用藝術涂料與裝飾畫搭配的背景,餐邊柜上擺放主人收藏的漂亮杯子,細節地刻畫家的溫馨面貌。 餐廳的另一側墻面設計透明酒柜和儲物柜,利落地消除日常有可能出現的雜亂。深淺色搭配的餐桌椅,進一步表達家的摩登與時尚。 KITCHEN 廚房>> 廚房同樣以灰白色系打造,U型操作臺的動線堪稱完美,部分廚房電器嵌入櫥柜中,空間看起來整潔又清爽。 STUDY 書房>> 對于從事教職的女主人來說,擁有一個寬敞明亮的書房是妥妥的剛需,我們將書房打開,做成開放式,區域連通的同時也連接起了家人間的情感。 黑色天生擁有神秘、酷雅的魅力,用在書房中更能彰顯讓心緒寧靜的意味。方正的空間劃分出不同的功能區,有序地安排好居家閱讀、學習、工作的節奏。 外側的吧臺既能作為軟隔斷使用,又提供了靈活實用的休閑功能。墻面的大書柜設計出半弧形造型,輕巧地為空間帶來時尚且柔和的變化。整體純粹的黑,積蓄包容萬物的力量,豐滿理性而深刻的質感。 BEDROOM 臥室>> 臥室著力以靜謐、安定的氛圍呈現生活的本質,自然的光影輕歌曼舞,無聲豐盈著室內場景。陽臺設計地臺打造休閑區,閑暇的午后泡杯清茶慢慢品味,在這個專屬的私人領域中,盡情地發掘生活的趣味和溫情吧。 BATHROOM 衛生間>> 主次衛空間均被灰度石材包裹著,沉淀出平和穩定的情緒。



















免費
免費申請戶型規劃
專屬設計師免費1對1全程服務
已經有3781人申請
24小時免費咨詢電話
400-8800-618
你家預算
108080元