
154㎡二胎房硬核改造,原木溫馨又有書香氣!
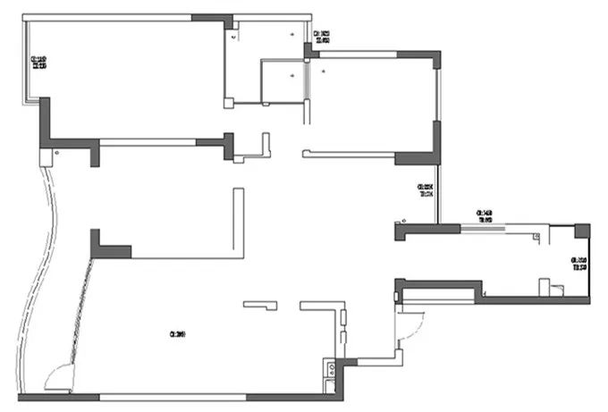
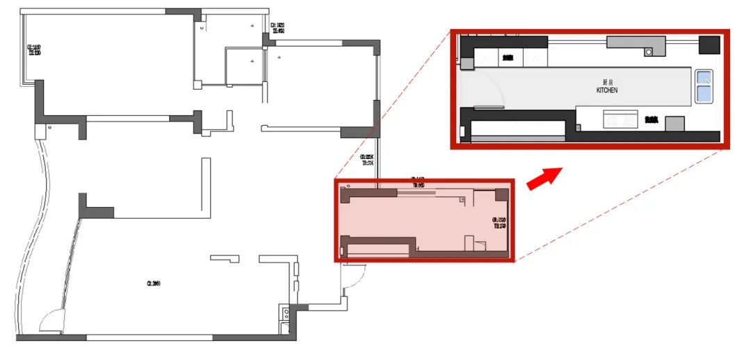
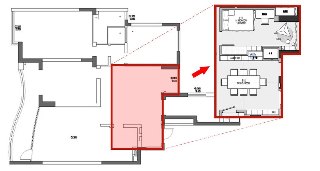
項目信息 / 地址:春江花月 城市:中國 杭州 戶型:四室兩廳 面積:154㎡ 風格:北歐原木 設計施工:浙江南鴻裝飾 其實很多時候 你并不需要做什么 真誠即可 / 本案是一個二胎房改造項目,家中常住五口人。女主人是一位白衣天使,性格溫柔,喜歡簡單清爽的風格。 業主一家因為二胎的到來,對于房屋的功能結構有了新的需求,三房希望改成四房,每個空間的功能仍舊保持完善。另外因為家里現在有了兩個小朋友,他們希望客廳能舍棄傳統模式,為小朋友提供足夠多的活動空間,最好還能增加一些書香氣。 ▼改造前 設計師經過與業主一家的多番對談,在針對他們的日常生活狀態和具體空間需求都進行了深入了解之后,重新梳理空間、劃分區域,規避原始的限制條件,增添更多新的功能區,力求將他們的生活需求都完整落地。 現代化功能型客廳如今正在慢慢興起,成為越來越多年輕家庭的選擇,本案也同樣如此。由于業主提出客廳要以小朋友日常生活的功能需求為設計重心,所以設計師用了整個書柜作為沙發背景,并省去所有多余家具以留出寬敞的活動空間供孩子們嬉戲,這讓客廳的功能屬性更為豐富也更有居家氛圍感。 全屋主色選用白與灰,當然僅僅是這兩種顏色的話未免會顯得有點“冷”,所幸有大量溫潤的原木材質中和了這種冷調感,使居室變得溫馨而舒適,局部還加入了少量跳色點綴,增加趣味性,讓孩子生活的這方天地更為活潑生動。 ▲原始戶型圖 優點/ 原戶型各個空間都很寬裕,尤其是客餐廳,而且南北兩面都有大大的落地窗,每個位置的采光都很好,加上全屋無明梁,增加了結構的可改造性。 缺點/ 早先設計不合理,入戶玄關擁擠,公區收納較少;廚房空間狹長,功能難以排布;客衛位于房屋中心,影響客餐廳居住感;餐廳雖大,但功能單一等。 設計優化 ▲改動一:原玄關的墻體拆除,進門視野變得更開闊。同時原客衛的墻體全部拆除,往東收進改成儲物區域,增加公區收納,也為餐廳釋放更多空間。 ▲改動二:狹長的廚房空間現重新布局,U型設計讓功能完備。因進深限制,廚房一側的臺面深度我們保留了45公分,確保能存放下大多數小家電。 ▲改動三:原餐廳位置分隔一部分,并擴進原來的北陽臺,將其改造成了擁有睡覺、學習、收納等完善功能的第四個房間(女兒房)。餐廳與女兒房的新砌墻處我們也做了合理設計,增加了水吧臺和冰箱位來豐富餐廳機能并優化動線,另一面則規劃出女兒房的衣物和書籍收納柜。 ▲改動四:主臥與長輩房之間的墻體拆除,借用部分長輩房進深,將衣柜做到該處,這樣主臥放下1.8m的床后,空間依然寬敞。 完整平面戶型圖 ▼ 玄關 / Hallway 入門進來首先看到是玄關與餐廳合到一體的公區域,在拆除原有墻體之后,空間得到了面積延展。整排嚴絲合縫的原木儲物柜增加公區收納,同時加強入戶視覺的縱深感。 靠近玄關部分柜子設計出換鞋凳和一面旋轉鏡,既方便日常換穿鞋和整理儀容,又進一步優化了餐廳的空間感。 從玄關往里看,視線所及之處便是通透的整塊動區。大大的落地窗攬進光線,燈光的完善布局在空間形成明暗對比,營造柔和的氛圍。 客廳 / Living Room 客廳4.2mx5m的跨度還是比較寬敞的,省去茶幾,將主沙發與書柜留出約20公分的距離,再加上大尺寸的地毯劃分出活動空間,讓家長可以陪伴孩子們在這里盡情玩耍。 主沙發一側搭配的小馬椅Pony Chair,出自芬蘭傳奇設計師Eero Aarnio之手。它的外形可愛,在人體工學設計上也考量周到,無論是小孩還是大人,都能舒服地坐在上面。 沙發選擇白與棕的拼色款式,簡約大方。沙發背景應業主的需求,我們打造了一面書柜,未來就讓滿墻的書籍成為家中最美的風景~ 客廳選擇投影儀+硬屏的形式布置家庭影院系統供日常的娛樂休閑,細節上防撞圓角的處理,對有老人、有寶寶的家庭非常友好。 純粹的色調呈現極簡的美,原木材質加入自然的詩意,在時光的發酵下變得愈發柔和可親。 餐廳 / Dining Room 餐廳使用開放式設計,無論視覺感受亦或是空間的實際利用都得到了最大化。過道兩側空間增加大量收納區域,以及餐邊柜和西廚的功能。餐椅選擇單椅+長凳的組合,這樣無論是家庭成員的日常用餐,還是客人來時的多人聚餐需求,都能得到滿足。 喵喵 is watching you ~~ 過道 / Corridor 儲藏間的房門做隱形門處理,完美融入過道墻面。 墻面涂刷水泥肌理的藝術漆材質,為空間蒙上一層樸拙、原生態的濾鏡,與原木的溫柔氛圍形成了一種有趣的反差,豐富空間層次。
























免費
免費申請戶型規劃
專屬設計師免費1對1全程服務
已經有3781人申請
24小時免費咨詢電話
400-8800-618
你家預算
108080元