
完美還原效果圖的氣質小戶型,半開放式廚房穩穩拿捏空間
MODERN STYLE /

設計的意義,往往總是存在于細節的調整。
每一個空間小角落的精心打造,最后化零為整,
就成了最接近你理想生活的樣子。

本案在硬裝上沒有用太復雜的色系和材質,簡凈的白、灰再加甜蜜的粉與幽靜的藍,居室的溫度變得清晰可感。
居室風格的呈現,很大的原因也是來自于兩位主人的性格反差,男主人沉穩理性,喜歡簡單明了的事物,而女主人則開朗活潑,天性浪漫,所以我們將兩位的性格特質結合在一起,共同反映在空間的元素表達上。
除了色彩,軟裝上我們也更偏向選擇那種俏皮可愛的風格,希望能借此表現一些年輕人的朝氣蓬勃、活力滿滿!
兩位業主與我的年齡接近,大家在一起聊得很開,整體溝通合作下來非常順暢。
在項目開工之后沒多久,女主人就懷上了寶寶,所以從硬裝到軟裝,全程基本是我和男主人對接共同肩負起裝修的大任,過程中也慢慢發現了這位看起來比較嚴肅,不茍言笑的業主,其實也是一個內心柔軟,還有點幽默細胞的大男生哈哈~

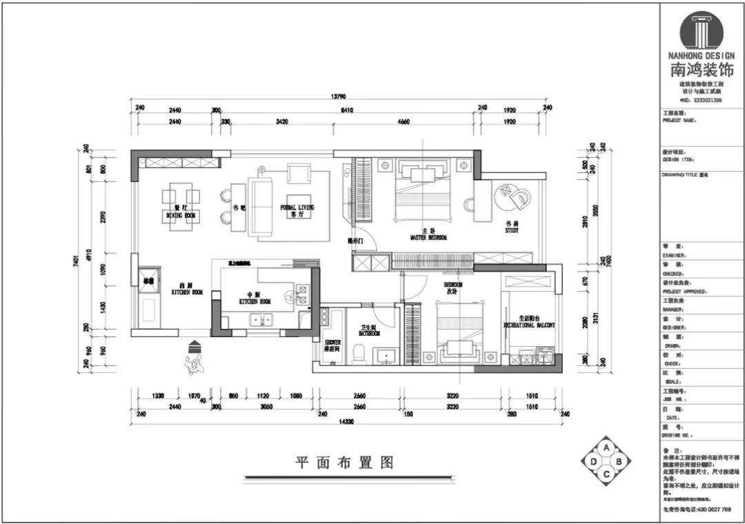
說回到居室,全屋我都做了無主燈的照明設計,但是業主擔心居室會不夠亮,因此在設計過程中就少量多次地增加了光源的設置。半開放式廚房最后做出來的效果也非常不錯,公區域看起來更加敞亮。客餐之間我還有增設吧臺,考慮到夫妻倆有在家辦公的需求而且戶型面積不算大,這也是必要的一個設計吧。



優點:客廳擁有一個大的落地窗,采光很好,有觀景優勢,另外戶型結構也算是方正。
缺點:客餐廳面積不大,電視背景位置較尷尬,廚房較小。

設計改造:
①原來贈送的陽臺都打通借給客餐廳,讓客餐廳的空間得以最大化。
②原廚房的窗戶很小,基本起不到采光通風的作用,所以我們把廚房能打掉的墻都打掉,做出大面玻璃移門,將客廳良好的光線導引到廚房。
線條明晰,靈動與沉穩兼備
客廳 / Living Room



客廳的大窗戶納入充足的自然光,光線作為一種自由流動的介質,就此與空間內的各種構件展開了親密對話。
杏粉色窗簾,大象灰的納帕皮沙發,靈動與沉穩的感覺互相滲透,恰合兩位主人不同的性格。整個空間沒有任何木材的元素,主要是通過色彩的運用來豐富空間。


靈動的色彩,可愛的造型,讓家的想象力無限延伸~
形態豐富,充滿藝術趣味
餐廳 / Dining Room

美好的居所,就像生命中那個總是能哄你開心逗你笑的人,給了日子甜蜜,還有許許多多的情趣,你會不由得就原諒生活的種種小刁難,讓自己活的簡單又快樂。



借助形式與功能的平衡,在去除非本質、不必要的裝飾之后,設計完美表現豐富而優雅的屬性。



吧臺作為餐廚功能的延伸,同時也是客餐之間的自然分隔,更是日常居家辦公最簡便的去處。
通透的半開放式改造
廚房 / Kitchen

玻璃移門起到了分割空間與加強廚房采光的雙重作用,塑造獨立卻并無任何隔閡的互動關系。

廚房內部的配色同樣選擇白與粉,清新治愈。經過一天的工作之后,在這樣愜意的環境中烹飪美食,然后兩個人一起笑著分享,真是一種既開心又美好的解壓方式。
極簡空間的溫暖與純凈
臥室 / Bedroom




簡約到極致的主臥,空間的背景無限后退,居住者的所思所想便能自然成為居室的主宰。儲物區域充足,點線面光源也得到均衡排布,空間倍感舒適愜意。
/ 項目信息 /
地址:晨光國際
城市:中國 杭州
戶型:兩室兩廳
面積:89㎡
風格:現代
設計單位:浙江南鴻裝飾
施工單位:浙江南鴻裝飾
- Thanks For Watching -
免費
免費申請戶型規劃
專屬設計師免費1對1全程服務
已經有3781人申請
24小時免費咨詢電話
400-8800-618
你家預算
108080元