
新作首發 | 我選擇,空無一物的生活

我們得學會在冷清中,
保持清醒與豐盈,
活出我們的風風火火。
——木心
【項目·信息】
地址 | 濱湖天地
城市 | 中國 杭州
戶型 | 四室兩廳
面積 | 130㎡
風格 | 極簡侘寂
設計施工 | 浙江南鴻裝飾
關于本案
About The Design
侘寂,是近年來逐步走紅的一種家居風格。與其說它是某種特定的風格,毋寧說是一種心境氛圍和生活態度的表達。
侘寂的外形很素,偏“古”,物器也是老的,但即使是外表斑駁,都無法阻擋(甚至會加強)內在傳達出的令人震撼的美,此即侘寂之美。

本案位于杭州臨安的一套高層住宅,作為主人的婚房使用。
男女主人都是美術老師,敏銳的藝術感受力,讓他們對于家的色彩、材質、細節等要求都是極高的,同時對家的需求也十分明確,比如餐廳想要島臺,臥室希望有地臺實現床的功能,有較多的衣帽儲物區域等等。
結合兩位主人各自的喜好,設計師最終選擇極簡和侘寂兩種風格融合為他們打造了這個專屬二人天地。


項目融合極簡的設計原則和日式侘寂美學,以天然材質、中性色調為全屋基礎,力圖呈現一種原始、自然、質樸的空間氛圍,讓居者即使生活在嘈雜的城市中,也不會感覺到喧鬧,安然自在的心境通過樸素的陳設完整映射了出來。
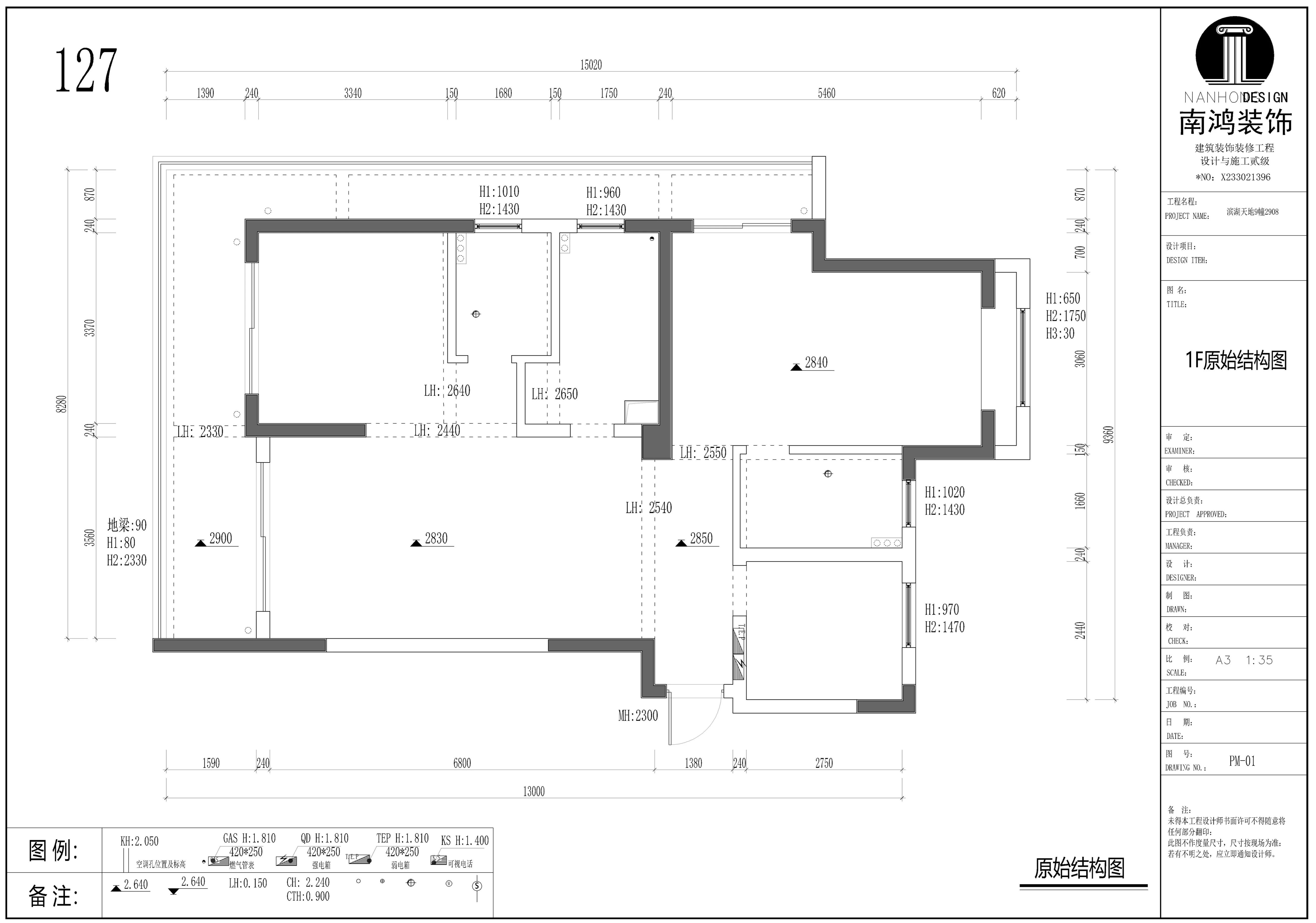
關于戶型
About The House Type

▲原始結構圖
戶型整體空間利用率較高,采光充足,環形露臺面積大,客餐廳及主臥面積則偏小,西面露臺進深小。

▲平面設計圖
優化改動:
客廳做外擴,將陽臺包了進來,增加空間感及采光直照;主臥增加衣帽間,并把西面露臺全部包進室內,提升主衛、廚房和書房的空間面積。
01.
玄關
Hallway


玄關的特別之處來自頂面,圓弧的造型,制造出類似穹頂的效果,再通過線性鋼條燈帶的光感延長空間尺度,縱向與橫向的視覺維度均得到拓展。右側深色鞋柜滿足了收納與審美的雙重需求。
02.
餐廳
Dining Room
玄關轉過彎來到就餐區,是與客廳相連的開放式餐廳。


餐廳采用島臺加餐桌的流行設計,操作臺面延伸出廚房,日常料理、就餐會更加方便。火燒石的巖板材質,搭配原木風餐桌,與餐椅和吊燈的現代工業質感碰撞出微妙的火花。左側開壁龕,頂部與廚房門的吊軌相連,細節間也充滿了巧思。

島臺增強了日常生活中一家人的互動性,又不顯山不露水地增加了很多儲物空間,實用性能一流。空間大片留白,高級感氛圍呼之欲出。
03.
客廳
Living Room
客餐廳如主人預期般相連通,空間感令人驚喜。


墻面統一用仿水泥的藝術漆材質,獨特的肌理感勾勒出質樸無瑕的生活場域。電視柜、茶幾選擇老木頭制作的中古家具,充滿歲月留存的氣息,突出侘寂風的返璞歸真之意。

包進露臺后,室內采光充足,墻面的漆質有效降低陽光在空間中的漫反射,從而展示出了獨特的陰翳之美。空間結構上采用大量留白和弧形設計,整體視覺過渡流暢,極簡之中又富于變化美。


休閑陽臺整合部分家政功能,將洗衣機、烘干機嵌入了柜體中,節省家務動線。落地窗最大限度保留室外景致,并以豎條百葉簾調節光線,再擺放一張單椅,“休閑”的功能就這樣簡單地落到了實處。

客廳通往主臥的房門我們做了藝術涂料的隱形門,保證視覺的高度統一。
04.
廚房
Kitchen

廚房較狹長,依墻體結構做對應操作臺設計,不浪費一絲空間。櫥柜色調上淺下深,呈現一定層次,深色的臺面也更耐臟。
05.
過道
Corridor


家中的過道相應做帶弧形的門洞,不同區域間元素彼此呼應,構成一個整體。彎曲的線條柔和視覺,空間剛柔并濟,觀賞性極佳。
06.
臥室
Bedroom

主臥室與全屋調性一致,同樣簡單而高級。地臺床制造高度差,帶來就寢時的儀式感,貼近地面的形式也讓睡眠環境更加舒適安心。


免費
免費申請戶型規劃
專屬設計師免費1對1全程服務
已經有3781人申請
24小時免費咨詢電話
400-8800-618
你家預算
108080元