
湖心別院 | 中式風結合意式極簡,打造時尚又雅致的東方美韻!
本案項目名為“淡·痕”,取自詩人王冕的“我家洗硯池邊樹,朵朵花開淡墨痕”一句。
業主喜梅,卻又覺得以梅花定整體基調缺少幾分時尚感,所以在整體風格設計上,我們選擇了中西結合的方法。
中式風格結合意式極簡元素,旨在營造輕松恬靜又不乏活潑氣息的家居氛圍。
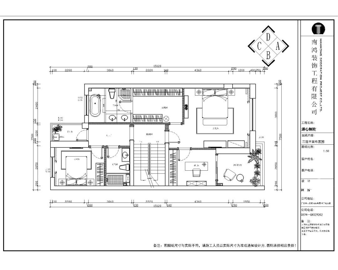
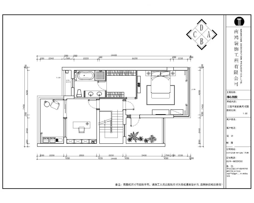
戶 型 圖

▲一層平面圖

▲二層平面圖

▲三層平面圖
/ 玄 關 /

步入玄關,山水詩意已撲面而來,墻上懸一幅長字畫,側邊用桌臺及展示柜擺放中式物件,鋪墊出素凈基調。
/ 客 廳 /

空間在設計上盡量做了“減法”,保持干凈利落的線條,并以木材、金屬與淡雅山水墻畫相搭配的方式為屋主構建清幽的生活環境。


沙發的青藍色與背后的墻畫呼應,所謂“翠峰疊嶂回音震,鏈影山光入畫屏”,其情其景,正寓于此。

▲客廳細節圖
/ 餐 廳 /

餐廳處出現了屋主最愛的梅花意象,大雪飄飛,寒梅獨立,一紅一白相互交融的圓景,著實令人喜愛,想必也會為屋主的每日用餐增添更多情趣。

▲餐廳細節圖
/ 廚 房 /

廚房主色調選擇簡潔的黑白灰,摒棄所有繁復枝節,保留最本質的收納、洗滌、烹飪等功能,讓人倍感舒適和清爽。

廚房亦設計了中島吧臺,既能做簡餐區,又能當臨時操作臺。墨綠與金屬色結合的吧椅成為一抹無法忽視的亮點,瞬間掃除沉悶。
/ 臥 室 /


三樓主臥間,青藍與木色的結合延續客廳基調,背景墻的主題依然選擇嬌艷的梅花,從床體與梳妝臺的樣式也能看出屋主對中國傳統文化的喜愛。


二樓女兒房設計為了大套間,室內寬敞明凈,布置簡約,又摻入些許粉色,令空間更具女兒家的靈動氣息。


女兒房套間里的書房與陽臺的休閑區連成一體,學習休息兩不誤。

全屋木色的長輩房,灰白墻體上裝飾兩幅清新畫作,于素凈中注入了活潑生氣。
/ 書 房 /

三樓的書房與陽臺相鄰,大玻璃窗引入外部光線使室內足夠明亮大氣。
/ 衛 生 間 /


衛生間做了雙臺盆設計,淋浴房浴缸雙配置,功能齊全,厚重的石材選用增加了整體沉穩大氣的感覺。
| 地址:湖心別院
| 戶型:五室兩廳
| 面積:280㎡
| 風格:新中式
| 設計施工:浙江南鴻裝飾
免費
免費申請戶型規劃
專屬設計師免費1對1全程服務
已經有3781人申請
24小時免費咨詢電話
400-8800-618
你家預算
108080元