
杭州小姐姐的85㎡“乾坤大挪移”:美式中古風C位出道!
本案是一套女業主購置的預備婚房,小姐姐鐘情于深邃的黑色以及復古元素,家中還有兩只可愛活潑的泰迪犬。在設計需求上,她希望這所空間既能表達復古美學的高級感,又能為毛孩子留出專屬生活區。
居室使用溫馨的奶油白做基底,墻面勾勒PU線條,搭配滿滿黑色元素,于色彩對比中形成鮮明的視覺張力。全屋深色柜體更以考究的線型裝飾豐富細節,金屬把手與玻璃柜門的組合更添中古韻味。

本案在格局上更是來了一場“乾坤大挪移”,功能區全部按照業主的需求重新進行了調配,比如客廳與臥室的位置對調,書房改做衣帽間等,讓家從視覺表現到實際居住,都擁有了最佳的舒適感受!


整體糅合現代、美式和中古風格,這種混搭手法,既可以滿足現代生活的實用需求,又在細節處暗藏了跨越時光的審美趣味——當午后陽光透過窗子在地面投下斑駁光影,空氣中恍然有靜謐詩意在流動。
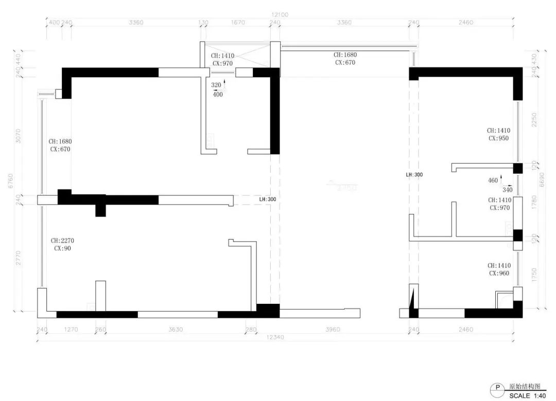
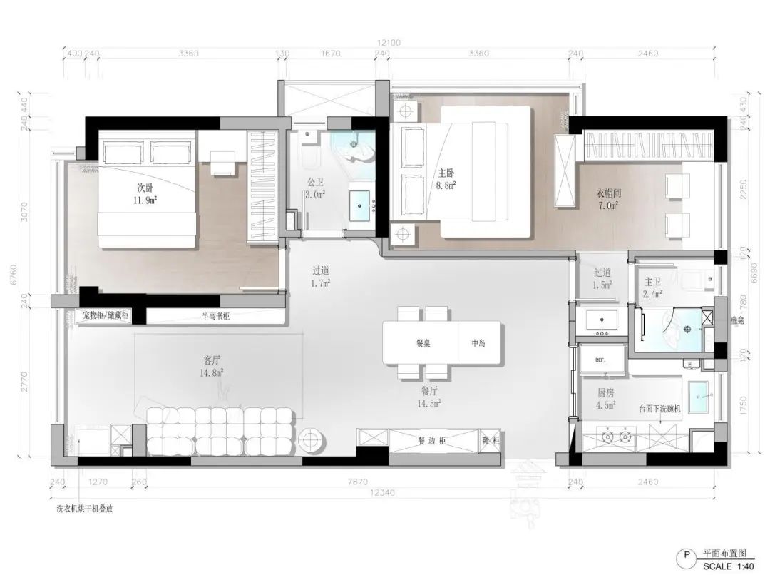
原始戶型圖 / 原戶型說明: 優點/ 南面采光好,衛生間分配合理,飄窗可砸。 缺點/ 原客廳采光較差,原主臥無法做出衣帽間,次臥離公衛較遠等。 平面方案圖 /

設計改動:
①包進陽臺并將次臥打通,原次臥區改造為客廳,加上落地玻璃,增強采光。
②原客廳改為主臥,原書房及公衛包進臥室變套房,增設衣帽間。
③廚房部分墻體往衛浴干區推進,留出冰箱位置,U型布局增加更多操作面積。
④原主臥及主衛改為次臥與公衛,解決次臥去衛生間較遠的問題。
Hallway
玄關

入戶以一方地毯為界,劃定出了門廳區域,玄關柜與餐邊柜通過L型布局自然銜接在一起,視覺流暢地轉入室內。


玄關是家的第一道風景,也是情緒轉換的微妙空間。萌寵元素的點綴,讓主人在推門的剎那,便能瞬間被溫情治愈。
功能布局上,玄關柜的中部鏤空區供放置鑰匙、手包,底部懸空區方便換放鞋履。點睛之筆是那抹紅色換鞋凳,打破單調的同時增強了歸家儀式感;墻面增設木制掛衣鉤,外套圍巾也各得其所。
Living Room
客廳


客廳舍棄了傳統電視機的模式,取而代之的是一排黑色中古矮柜,既方便日常收納,又散發出經久不衰的摩登質感。墻面留白,佐以線條勾勒,頂面配水晶吊燈,濃郁了一室復古氛圍。


陽臺作為復合型功能空間,以設計實現功能與美學的平衡:
①一側定制底部鏤空的儲物柜,可放寵物食盆,滿足毛孩子日常需求;
②另一側疊放有洗衣烘干機,家務動線很高效;
③懸落秋千椅,創造寶貴的精神療愈時光。
Dining Room
餐廳

餐廳配備巖板島臺并安裝插座,滿足多人火鍋宴聚需求。侘寂風原木餐桌搭配長凳與藤編餐椅,通體的黑色維持視覺的高度統一。頂面選配風扇燈,扇葉轉動間,流轉出獨特的工業復古情調。


黑色餐邊柜加以線條勾勒外型,搭配金屬拉手與長虹玻璃,顯得更加精致美觀。中段嵌入式操作區,既能滿足杯盞餐具與小電器的收納需求,又以虛實相生的手法以及燈帶的處理,增強了空間的通透感受。
Kitchen
廚房

廚房地面選用復古咖色小花磚,與暖調木紋地柜形成細膩的色彩呼應,營造溫馨而不失格調的烹飪空間。整體通過U型布局流暢了下廚動線,嵌入式廚電與柜體嚴絲合縫,保證空間的極致清爽。
Bedroom
臥室


主臥選配黑色復古風的床具、床頭柜,墻面同樣以PU線條裝飾,黃銅壁燈在奶油色墻面上投射出溫暖光暈,渲染一方生活與藝術相融的優雅之景。

利用原書房的空間,為主臥增加了獨立衣帽間使用。通頂的黑色中古風衣柜佇立一側,默默擔當收攏居家物件的角色,L型布局延伸出梳妝臺,日常還可做小書桌。
Bathroom
衛生間
主衛做干濕分離,黑色五金件與黑色臺盆柜面呼應,盡情展現中古美學的雅致與沉穩。長尺幅鏡柜不僅可以增加洗沐物品的儲存區域,又帶來了空間放大的視覺效果。


次衛使用了復古壓花玻璃門,內部空間延續簡約而有質感的設計,營造明亮整潔的洗沐環境。
P.I. 項目信息
項目名稱:景湖苑
設計風格:美式中古
項目類型:兩室兩廳
項目地點:中國 · 杭州
項目面積:85㎡
項目服務:設計·施工·硬裝·軟裝 全案設計
設計單位:浙江南鴻裝飾
施工單位:浙江南鴻裝飾
免費
免費申請戶型規劃
專屬設計師免費1對1全程服務
已經有3781人申請
24小時免費咨詢電話
400-8800-618
你家預算
108080元