
質感·黑白灰 | 奢雅私宅,雕塑非凡品味

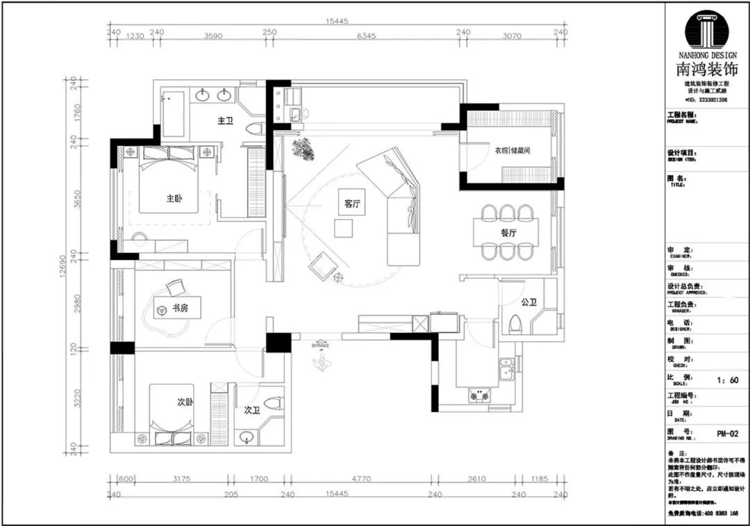
項目信息 PROJECT INFORMATION 地址/ 薈品天語城 城市/ 中國 杭州 戶型/ 四室兩廳 面積/ 173㎡ 風格/ 現代簡約 設計施工/ 浙江南鴻裝飾 本案是以現代簡約風格為設計理念的精裝房改造項目,在色彩運用上較為克制,線條使用也頗為凝練簡潔,材質的混搭與色塊的拼接讓層次提升,空間也洋溢出低調又時尚的高級感。 平面方案<< 實景呈現<< 客廳 / Living Room 黑白灰三色均勻協調,盡情展現著現代風的美學奧義。沙發、茶幾、地毯等軟裝家具呈收攏狀排布,讓區域功能劃分更為清晰利落。整體空間寬闊大氣,質感上也是不遑多讓。 低矮的家具選擇,有利于在視覺上將層高拉伸。電視背景墻則用黑白色塊的拼搭與懸浮的形式,為空間增添美感、層次與輕盈的力。 衣帽兼儲藏間完全隱于一體黑色門板,色彩的深沉賦予空間神秘而高雅的特性,家居日常會產生的雜亂也被穩當收蓄在角落。 家的美感需要一定的功能來支撐,儲物區的設置也依照有藏有露的原則,讓美可以盡情展露,也讓生活得以卸下重擔,披上輕盈和便捷的外衣。 餐廳 / Dining Room 原次臥的位置被改造為餐廳,這樣能讓客廳的效果更加完整。餐廳墻面使用了金屬材質飾面板,金屬的光澤與餐桌石材的質感和掛畫瑰麗的色彩相得益彰,創造出別具一格的視覺體驗。 臥室 / Bedroom 低奢有度的氛圍一直延續到臥室,素雅的底色帶來全方位的沉浸感和舒適體驗。 書房 / Study 閑適自在的書房空間,只是簡單的讀書工作,也能在淺淺的光隙中,感知到自然和生活的能量,溫潤而又綿長。

















免費
免費申請戶型規劃
專屬設計師免費1對1全程服務
已經有3781人申請
24小時免費咨詢電話
400-8800-618
你家預算
108080元