
400㎡云水山居 | 感知自然,樂享閑適

項目信息
PROJECT INFORMATION
地址 | 云水山居
城市 | 中國 杭州
戶型 | 排屋
面積 | 400㎡
風格 | 現代
設計施工 | 浙江南鴻裝飾
簡約的現代主義與其說是一種風格,毋寧說是一種生活方式,它在告訴我們用理性看待物質,用精神的富足來衡量存在的意義。空間設計除了為人們構筑外在的休憩所,也是在為情感和精神提供安居地。


本案設計依托于房屋結構本身,從色彩到燈光的搭配,從軟裝家具到空間布局,為居者帶來全方位的舒適、愉悅的體驗。

卸下疲憊、洗凈鉛華,迎接那個最真實的自己。
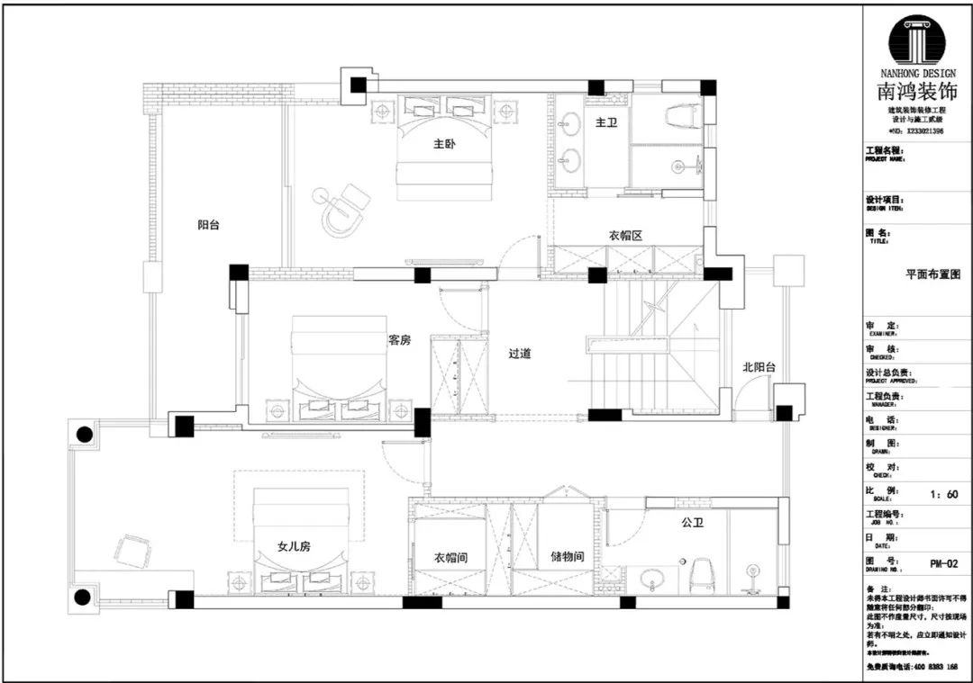
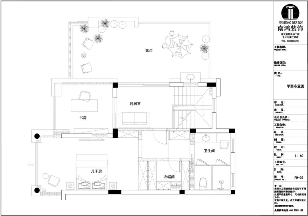
戶型設計 |

▲一層

▲二層

▲三層
實景呈現
CASE APPRECIATION
玄關 //

玄關擯棄所有“花里胡哨”,以實用性為原則為居者的日常提供最大便利。盡頭處使用霧面效果的玻璃隔斷,創造朦朧的視覺感,保護室內隱私并提升過道采光。
客廳 //



借助階梯的高低差,設計師打造出了這個設計感頗強的下沉式客廳,使單一空間有了更多可變化的情景。低矮的家具造型,木質背景墻的紋理線,平整光滑的頂面,都在無形中拉伸整個居室的縱向維度,營造大氣的雅居質感。造型上的燈光帶,也讓背景墻體塊變得更加立體有層次。
餐廳 //

餐廳以圍合的方式打造家人間的親密感和互動性,明凈的自然光營造清爽氛圍,一家人圍而就餐,其樂融融。
廚房 //


廚房與餐廳以吧臺相連,餐廚一體化設計提供最高效的操作空間,開放式布局打造無縫過渡的社交場域。

木材的細膩肌理帶來最直觀的舒適體驗,廚房內部以深淺色的搭配和諧視覺,低調地展露著現代人居的品質感。
樓梯 //



樓梯使用石材與玻璃護欄的搭配,底部氛圍燈光加以調和,線條簡潔明練,與建筑空間完美地融為了一體。
臥室 //

家承載著人們豐盈的美好的想象,空間以其材質和色彩的輕盈構塑,給予居住者無比溫柔、自由的安適感。




兒臥以貼近自然的大地色系打造,天然的木質元素營造沉穩淡然的氛圍,令人頓覺喜愛。陽臺包入室內打造休閑品茗區,暖暖的陽光傾照入室,此刻便有了一種“久在樊籠里,復得返自然”的感悟,在內心悄然生長。


三層的另一間兒臥則因循建筑結構本身,打造出異形吊頂,為空間增添了動感和趣味。
衛生間 // 一以貫之的黑白灰中性色調占據著衛浴空間,展現高度的統一性,簡約有型的臺盆柜配上高顏值臺上盆,塑造優雅的質感美學。 露臺 // 頂層的露臺安置戶外休閑桌椅,盡情承接著大自然的陽光和綠景,微風帶來綠葉的清香,靜坐片刻,便是一場絕佳的心靈SPA。


免費
免費申請戶型規劃
專屬設計師免費1對1全程服務
已經有3781人申請
24小時免費咨詢電話
400-8800-618
你家預算
108080元