
110㎡現代簡約 | 清爽格調,自在生活
MODERN · STYLE

作品前言
本期屋主從事IT行業,性格安靜內斂,比較喜歡簡單質樸的設計。空間整體的色彩搭配以黑白灰為主,加上木色以及局部軟裝調和,讓空間更為純粹,也讓每日的生活更輕快、更自由。

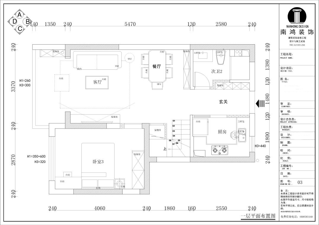
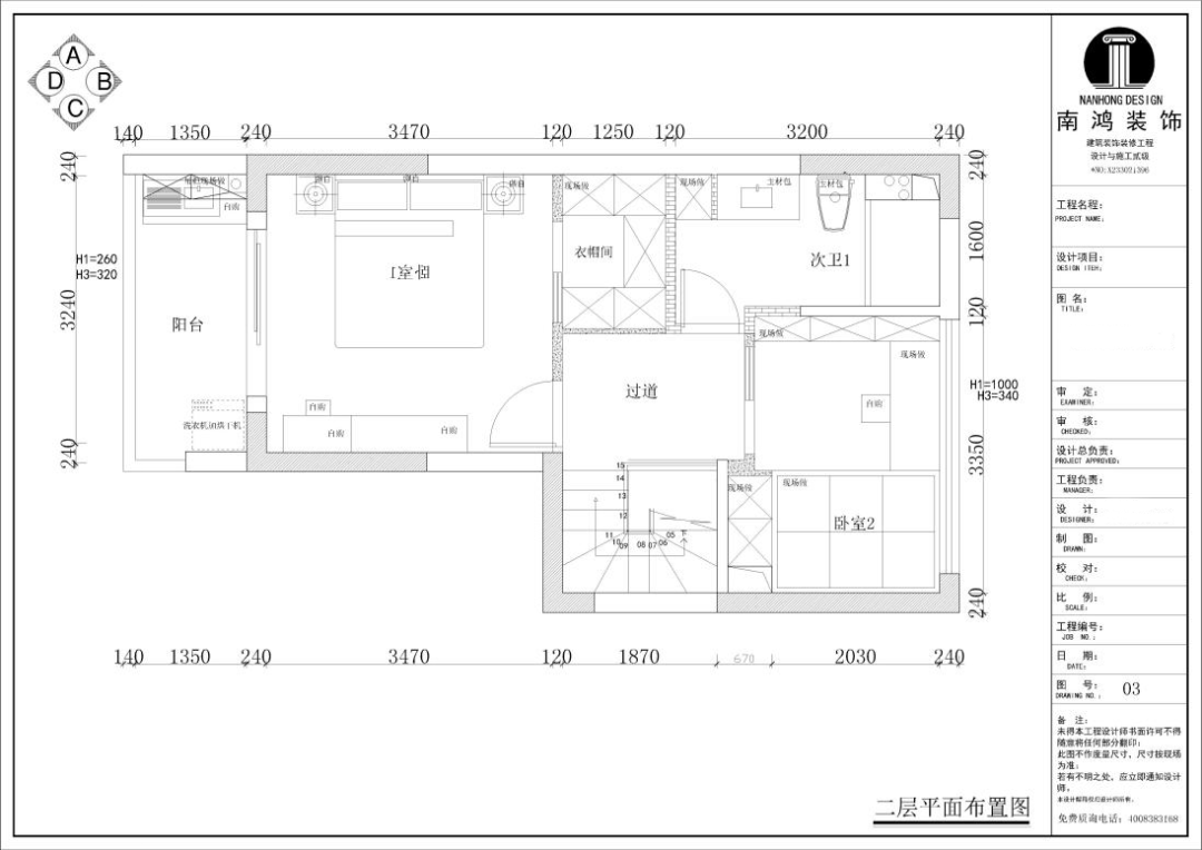
戶型方案?

▲一層

▲二層
實景呈現
>>客廳




克制內斂的色彩和精簡至極的布置催生出室內的秩序感、通透感,巖板電視背景墻用懸浮的方式削減了材質自身的厚重感,結合地臺和裝飾品,將簡約高級的調性靈性勾勒。空間大范圍留白,只為褪去浮躁喧囂,留下沉靜思考。
>>餐廳

餐廳與客廳同處一個空間,將動線縮減。背后的木質餐邊柜為日常生活的添置留足空間,方便維持長期整潔。


餐廳適當做一些活力的跳色,結合皮藝材質,讓家的面貌更加精致、生動和活潑。

>>廚衛

廚衛空間用低調的灰色系搭建,以實用和宜居為基點,視覺結構流暢,帶給人舒適和愜意感受。
>>臥室



臥室營造恬靜放松的氛圍,簡單的家具構筑睡眠環境的核心區,舒緩純粹的色彩,像是覓見一場久違的療愈之旅。
——
/ 項目信息 /
地址:湖濱外灘
城市:中國 杭州
戶型:復式
面積:110㎡
風格:現代簡約
設計單位:浙江南鴻裝飾
施工單位:浙江南鴻裝飾
- Thanks For Watching -
免費
免費申請戶型規劃
專屬設計師免費1對1全程服務
已經有3781人申請
24小時免費咨詢電話
400-8800-618
你家預算
108080元